1500 ROBERT C BLAKE SR DR StreetNew Orleans, LA 70130




Mortgage Calculator
Monthly Payment (Est.)
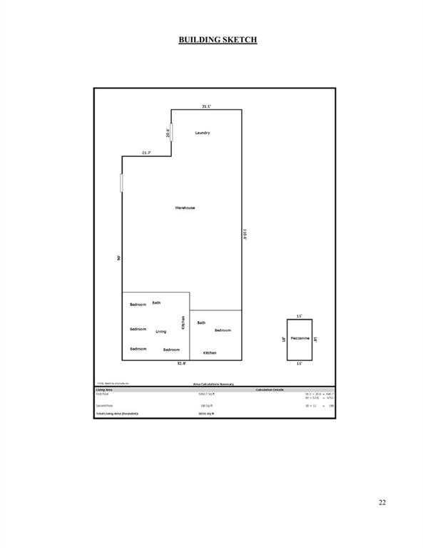
$3,645Prime Corner Lot Warehouse with Office and Apartment—5,591 Sq. ft. Three blocks to I-10 and one block off St. Charles Ave. This versatile 5,591 sq. ft. warehouse-office-apartment property is an outstanding opportunity for business owners, investors, or developers looking for a high-visibility, high-potential space in a prime location just one block off St. Charles Avenue, with direct I-10 access. Property Features: 3,500 sq. ft. of warehouse space with an orchid roof with 25-foot ceiling height with room to add a mezzanine or second floor for expanded use Two overhead doors (10’x12’ and 10’x8’) for seamless loading/unloading operations Corner lot with plenty of street parking for convenience Off-street area Office/apartment layout offering two separate spaces with a common entrance area—ideal for dual offices, rental units, or a live/work setup Location Highlights: Formally Carondelet Street, offering a rich historical and commercial backdrop One block off St. Charles Avenue, a prime location near New Orleans’ famous streetcar line and thriving business corridor Caddy corner to the former Brown’s Velvet Dairy, where 50 Airbnb units were recently developed—showcasing the area’s strong growth and investment potential Easy access to I-10, providing seamless connectivity to major business hubs Excellent redevelopment opportunity in a rapidly evolving neighborhood Vacant & Easy to Show! This property is currently vacant and ready for immediate viewing. Call Gary at 504-236-3311 to schedule a private tour!
| 3 days ago | Listing first seen on site | |
| 3 days ago | Listing updated with changes from the MLS® |
Copyright © 2017-present, New Orleans Metropolitan Association of REALTORS®, Inc. All rights reserved. Information deemed reliable, but not verified or guaranteed. Users are responsible for checking the accuracy, completeness, currency, and status of all information.
Did you know? You can invite friends and family to your search. They can join your search, rate and discuss listings with you.